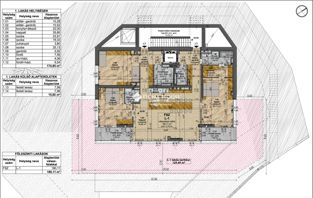
625 000 000 Ft
Elhelyezkedés, kerület
Budapest, 2.
Szobák száma
4
Fürdőszobák száma
3
Alapterület + telek méret
185.00 + 0.00 m2
