Eladó lakás, Budapest, 2. kerület
Elküldöm

Ingatlan adatlap

Elhelyezkedés
Budapest 2. dist.
Szobák száma
3
Fürdőszobák száma
2
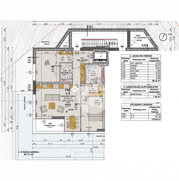
Alapterület
101.23m2
Terasz / erkély
1
Referencia szám
PR036046/LK/26161
904 204 EUR 331 797 500 Ft

Leírás

Eladó prémium kategóriás, panorámás lakás a II. kerület legelegánsabb környékén, a Rózsadomb kedvelt részén, Rézmálon!

Budapest egyik legkedveltebb, csendes, zöldövezeti részén, a II. kerületben kínálunk eladásra egy közel 100 m²-es, földszinti, Délnyugati tájolású, panorámás lakást, melyhez 7 m²-es fedett terasz, gépkocsibeálló és tároló is tartozik. Az ingatlan egy háromszintes, exkluzív, hétlakásos társasházban található, amely modern műszaki megoldásokkal és prémium anyaghasználattal készül.

Az épület
A Budapest II. kerületének szívében található kis lakásszámú társasház magas műszaki és esztétikai színvonalon épül, A+ energetikai besorolású épület. A lakók kényelmét és biztonságát kamerarendszer, távfelügyelettel ellátott riasztórendszer, tűzjelző, valamint IP-alapú kamerás kaputelefon garantálja. Az épületet díszkert, automata öntözőrendszer, és kültéri világítás veszi körül, amely a természetközeli életérzést erősíti.

A lakáshoz két darab elektromos autótöltésre előkészített parkolóhely (18 M Ft/db), egy tároló (6 M Ft), valamint egy 69 nm-es privát kert is tartozik.

A lakás leírása
A lakás praktikus elrendezésű, világos terekkel: tágas amerikai konyhás nappali, két különálló hálószoba, kettő fürdőszoba, egy gardróbszoba, valamint egy 7 m²-es fedett terasz tartozik hozzá, ahonnan panorámás kilátás nyílik a Budai-hegyekre.
A belső terekben prémium minőségű belső ajtók, szaniterek és burkolatok kerülnek beépítésre. A padlófűtés és mennyezeti hűtésfűtés Daikin hőszivattyús rendszerrel működik, kiegészítve Viessmann kondenzációs kazánnal.
A helyiségek hőmérséklete helyiségenként egyedileg szabályozható, az okostelefonról is vezérelhető NGBS termosztát rendszerrel. A lakásban okosotthon rendszer kerül előkészítésre.

A lakás a szinten található szomszédos, 73 m²-es lakással igény esetén közvetlenül egybenyitható, így összesen közel 171 m²-es, egyedi elrendezésű, tágas otthon alakítható ki. Az egybenyitott, együttesen megvásárolható lakások ideális választás akár nagyobb családoknak, kétgenerációs megoldásként, vagy befektetési célra.

Műszaki jellemzők

Hőszivattyú: Daikin központi rendszer, padló- és mennyezeti hőleadással
Kiegészítő fűtés: Viessmann kondenzációs kazán
Energiaosztály: A+
Hőszigetelés: Austrotherm XPS és PIR rétegek
Nyílászárók: alumínium Schüco rendszer, 4 rétegű, betörésálló üvegezéssel
Árnyékolás: alumínium zsaluzia/redőny, távirányítóval, automatikus vezérlés előkészítéssel
Burkolatok: Flaviker prémium greslapok, tölgy szalagparketta
Szaniterek: Duravit / Laufen
Csaptelepek: Grohe / Hansgrohe
Biztonság: riasztó, kamerarendszer, biztonsági bejárati ajtó
Okosvezérlés: helyiségenkénti termosztátok, mobilról vezérelhetők
Kert: díszkert automata locsolórendszerrel, kültéri világítással
A környék
A lakás kiváló közlekedésű, mégis zöldövezeti elhelyezkedésű: a környéket csendes utcák, elegáns családi házak és friss levegő jellemzik. Rövid sétatávolságban elérhetők iskolák, óvodák, bevásárlási lehetőségek és a Haris park. A környék biztonságos, barátságos, és a Budai-hegyek természetközeli atmoszféráját kínálja a mindennapokban. Az utca gyönyörű, platánfákkal övezett.

Várható átadás: 2026 végén

Érdeklődés esetén keressen bizalommal, akár hétvégén is!

Az ingatlan alaprajza


Kollégánk várja érdeklődését!

Szieben Katica
Tel: 36 20 8495-mutasd!
E-mail: [email protected]

Visszahívást kérek