Eladó lakás, Budapest, 2. kerület
Elküldöm

Ingatlan adatlap

Elhelyezkedés
Budapest 2. dist.
Szobák száma
3
Fürdőszobák száma
3
Alapterület
100.44m2
Referencia szám
LK027531
934 250 EUR 340 478 040 Ft

Leírás

Egyedi kuriózum Buda egyik legjobb lokációjában, ahol a múlt és a jelen luxuslakások formájában fonódik össze.

Adott egy csodálatos múlttal rendelkező 1923-as építésű villa, egy csendes, zöldövezeti utcában, kiváló kilátással a Budai Várra, Gellért-szoborra és a budai hegyekre, mely az alapja volt a koncepciónak, melyben a felújítás és bővítés során a műemléki védettségű épület megőrzése és a modern technológiai megoldások integrálása állt a középpontban. A Beruházó végül 4 luxus minőségű lakást álmodott meg, és épített meg.

1.Giardino Solare A Fénykert Lakása (kertkapcsolat)

Ez a belső háromszintes lakás tágas, világos terekkel és közvetlen kertkapcsolattal rendelkezik. Nettó egyben hasznos alapterülete 106,74 m2 terasz nélkül, a következő elosztásban: teremgarázs felőli belépőszint 20,93 m², földszint 40,99 m², emeleti terület pedig 44,82 m². A 180 m², saját, hangulatos ösvényen megközelíthető privát kert, víz- és áramelőkészítéssel, privát oázisként funkcionál. A tervezett belső térben természetes anyagok és meleg árnyalatok dominálnak, amelyek harmonizálnak a zöld környezettel, de a bútorozatlan lakás a tulajdonos elképzelése szerint bármilyen színvilágot kaphat. Egy 9,5 m2 területű jól kihasználható tároló tartozik hozzá, néhány lépés közelségben a garázs felőli belépő szinttől. A minimalista dizájn a lakás külső homlokzati megjelenésében különleges, elegáns kontrasztot mutat a százéves villaépülethez szervesen illeszkedve. A lakáshoz opcionálisan egy (elektromos töltőállással is rendelkező) teremgarázshely vásárolható.
Nyugat - északnyugati tájolású kertes lakás
Lakás teljes hasznos alapterület: 106,75 m²
Lakás redukált alapterület: 102,56 m²
Szintek: Háromszintes belső kialakítás
Privát kert: 180 m² napos, nyugat-északnyugati fekvés, saját exkluzív pihenőövezet
Tároló: 9,5 m² (benne a vételárban)

2.Terrazza Segreta A Titkos Terasz (kertkapcsolat)

A lakás 136,71 m² alapterületű, három szinten, logikus elosztással: a belépőszinten 38,33 m2-en - összeköttetésben a garázs felőli lépcsőházzal és alagsori résszel - egy többfunkciós lakótér található. Ez a lakrész egy tágas egybefüggő tér, WC/mosdóval, valamint külön vendégzuhanyzóval. A helyiség berendezése, kihasználhatósága több lehetőséget enged: wellness-terem/szauna, olvasószoba, relaxációs helyiség, vendégszoba, tárolási funkciók, stb.. Az ingatlan földszintjén van a mindennapi élettér, a nappali és étkező-konyha 32,52 m² alapterületen, valamint innen nyílik a privát kertre a terasz kijárat. Az emeleten 40,31 m²-en a két hálószoba foglal helyet egy tágas fürdővel. Az emelet előtere áll összeköttetésben a privát, hangulatos, kedvező tájolású, kb. 42 m2-es terasszal, melyből 27 m2 használható.
A minimalista külső dizájn a Giardino Solare-hoz hasonlóan itt is ugyanazt a kontrasztot, mégis harmonikus eleganciát mutatja. A lakáshoz tartozik egy 120 m²-es saját, privát kert, amely áramelőkészítéssel rendelkezik.
A lakáshoz opcionálisan egy (elektromos töltőállással is rendelkező) teremgarázshely vásárolható.
Kelet északkeleti tájolású kertes, belső teraszos lakás
Lakás teljes hasznos alapterület: 136,71 m²
Lakás redukált alapterület: 116,84 m²
Szintek: Háromszintes belső kialakítás
Privát kert: 120 m² teljesen belátásmentes zöldövezet
Kerti pergola: 9 m² (benne a vételárban)
Tároló: 9,5 m² (benne a vételárban)

3. Residenza d'Arte A Művészet Otthona (1. emelet)

A Residenza dArte elegáns, egy szinten elhelyezkedő lakás az első emeleten, amely ideális választás azok számára, akik tágas és exkluzív otthonra vágynak. A villa épületrésznek három meghatározó lakása (földszint/lakott; emelet/eladó és tetőtér/eladó) közül talán ez az otthon ötvözi leginkább a mellvédes, óriási teraszával az intimitást, a panorámás kilátást, a történelmi jegyeket, valamint a nagyobb alapterület előnyeit egyaránt. A lakás összesen 127,8 m² nettó, hasznos alapterülettel rendelkezik, mely három hálószobát foglal magában. A lakás legimpozánsabb része a 44,62 m²-es panorámás terasz, amely tökéletes helyszín a pihenésre és a társasági események lebonyolítására. A terasz az épület teljes szélességében húzódik három kijárattal, a panoráma irányában, déli tájolással. A lakás végleges alaprajzi kialakítása, valamint belsőépítészete a bútorozott látványterveken Roberto Paoli munkája.
Az ingatlanhoz tartozik egy 13 m²-es, padlófűtéssel rendelkező tároló, mely természetes fényt is kap mosókonyha, zeneszoba vagy akár kis iroda funkcióra is alkalmassá tehető. Ez a lakás ideális választás mindazok számára, akik exkluzív, időtálló, értékőrző, mégis funkcionális otthont keresnek, ahol a belső tér kialakítása találkozik a praktikummal. A lakáshoz opcionálisan kettő (elektromos töltőállással is rendelkező) teremgarázshely vásárolható.
Déli tájolású, első emeleti, panorámás lakás
Lakás teljes hasznos alapterület: 127,8 m²
Panorámás terasz: 44,62 m²
Lakás redukált alapterület: 150,11 m²
(Terasz 50%-a számítva)
Szintek: Lakás egy szinten, az 1. emeleten
Tároló: 13 m² padlófűtéssel és természetes fénnyel rendelkező, esetleg iroda/mosó/zeneszoba funkcióval (benne a vételárban)

4.Orizzonte Blu A kék horizont

Ez a tetőtéri luxuslakás a projekt legegyedibb ékköve, amely lenyűgöző panorámával rendelkezik. A 138,94 m²-es nettó (teljes) alapterületű otthon belső tere modern művészeti elemekkel ötvözött minimalista kialakítást kapott, amely végleges alaprajza és belsőépítészeti megoldásai Szebellédy Judit belsőépítész exkluzív tervei szerint készült, Roberto Paoli ihlette enteriőrrel. Az Orizzonte Blu egy igazán különleges, tetőtéri penthouse lakás, amely a tetőtér teljes területét elfoglalja. A lakás elvehetetlen panorámás kilátással büszkélkedhet, szinte 180 fokban. A lakók kizárólagos lehetőségét szolgálja, hogy a lift a garázs szintről közvetlenül a lakásba érkezik (penthouse-lift), biztosítva a maximális kényelmet és exkluzivitást. Az árazott terület 85%-ra redukált, vagyis 118,10 m², a 190 cm feletti hasznos terület legalább 79,92 m² (későbbiekben kerül pontosításra). A lakáshoz tartozó tágas, 18 m²-es tároló két egybenyitott helyiségből áll, így lehetőséget nyújt bármilyen extra funkcionalitásra. Ez a lakás azok számára készült, akik nem csupán lakóhelyet, hanem egy életérzést keresnek ahol a modern design találkozik a nyugalmat árasztó panorámával. A lakáshoz opcionálisan kettő (elektromos töltőállással is rendelkező) teremgarázshely vásárolható.
Déli tájolású, tetőtéri panorámás lakás
Lakás teljes alapterület: 138,94 m²
Redukált alapterület: 118,10 m² (85% szorzó)
Hasznos alapterület: minimum 80 m²
Szintek: teljes tetőteret elfoglaló penthouse-lakás, penthouse-lifttel
Panorámás kilátás: három dupla tetőtéri ablakból
Tároló: 18 m² két egybenyitott helyiségből áll (benne a vételárban)

Amennyiben fontos Önnek a minőség és az egyedi megoldások,valamint szívesen élne Buda egyik legkiválóbb lokációjában, várom a hívását.
Előzetes időpont egyeztetéssel rugalmasan megtekinthető.

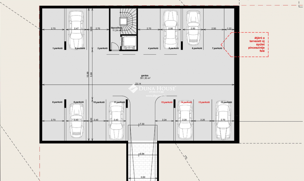
Az ingatlan alaprajza


Kollégánk várja érdeklődését!

Olgaard Zsáki Izabella
Tel: 36 30 6984-mutasd!
E-mail: [email protected]

Visszahívást kérek