Eladó ház, Szentendre
Elküldöm

Ingatlan adatlap

Elhelyezkedés
Szentendre
Szobák száma
4
Fürdőszobák száma
2
Alapterület
400.00m2
Telek mérete
250.00
Belső szintek száma
4
Referencia szám
HZ055694
2 650 000 EUR 1 036 918 500 Ft

Leírás

Szentendre óvárosának ikonikus műemlék épülete – befektetés és életérzés egyben!

Kivételes lehetőség a történelmi környezet szívében, Szentendre óvárosában. Az egyik legszebb, macskaköves utcában kínálunk megvételre egy minden részletében igényesen felújított, klasszicista műemlék épületet, amely egyszerre hordozza a múlt eleganciáját és a jelen kifinomult komfortját. Az ikonikus panoráma, a mediterrán hangulatú belső udvar és a többfunkciós hasznosítási lehetőségek olyan kombinációt alkotnak, amely az ingatlanpiacon valódi ritkaságnak számít.

A közel 400 négyzetméteres, több szinten elosztott épület 2013-ban teljes körű – műszaki és esztétikai – megújuláson esett át, azóta folyamatosan karbantartott, így azonnal, kompromisszumok nélkül hasznosítható.

A földszinten jelenleg egy bejáratott, karakteres étterem működik, amely szervesen illeszkedik az óváros pezsgő, egész éves turisztikai életébe. A hangulatos, intim belső udvar – középpontjában a két évtizedes, bő termést hozó fügefával – különleges atmoszférát teremt a vendégeknek és a tulajdonosoknak egyaránt.

Az épület alatt kétszintes, autentikus pincerendszer húzódik, amely tökéletes alap exkluzív borospince, kóstolótér, privát rendezvényhelyszín vagy galéria kialakítására. A felső szinten külön bejáratú, tágas luxuslakás kapott helyet három hálószobával és két modern fürdőszobával; a panorámás teraszról pedig páratlan kilátás nyílik a Templomdomb ikonikus látképére. A saját kút további különleges értéket képvisel, amely ma már ritkaságszámba megy a történelmi városmagban.

Az ingatlan sokoldalúsága lehetővé teszi vendéglátás és prémium apartman együttes üzemeltetését, boutique hotel vagy wine bar kialakítását, reprezentatív cégközpont létrehozását, de akár teljes egészében elegáns, exkluzív családi rezidenciává is alakítható. A kulturális pezsgés, a Duna-part közelsége és az egész éves látogatottság stabil, kiszámítható befektetési hátteret biztosít.

Ez az épület nem csupán ingatlan, hanem státusz, hangulat és hosszú távú értékmegőrzés egyben – a történelmi örökség és a modern luxus harmonikus találkozása.

Amennyiben szeretné személyesen is megtapasztalni ezt az egyedülálló atmoszférát, örömmel állok rendelkezésére.

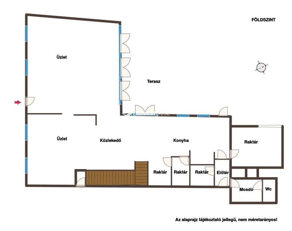
Az ingatlan alaprajza


Kollégánk várja érdeklődését!

Domjánné Puskás Margit
Tel: 36 30 4153-mutasd!
E-mail: [email protected]

Visszahívást kérek