Eladó ház, Budapest, 2. kerület
Elküldöm

Ingatlan adatlap

Elhelyezkedés
Budapest 2. dist.
Szobák száma
4
Fürdőszobák száma
3
Alapterület
195.00m2
Telek mérete
805.00
Belső szintek száma
3
Referencia szám
HZ069175
1 335 332 EUR 490 000 000 Ft

Leírás

Pesthidegkút egyik legrejtettebb, mégis legelőkelőbb mellékutcájában egy különleges építészeti alkotás várja új tulajdonosát.

A Francia és Amerikai Iskola közelségével, az erdő peremének nyugalmával és a modern luxus otthonok minden kényelmével ez a kétlakásos, mégis teljesen különálló villarész valódi ritkaság a II/A kerület kínálatában.

A természet fényeivel megtöltött terek:
A villa lélegzetelállító első benyomása a padlótól mennyezetig érő üvegfelületekben rejlik. A nappalikonyhaétkező szinte egyetlen, fényben úszó térként tárul fel, ahol a kert és a ház közötti határ gyakorlatilag eltűnik. A belsőépítészeti megoldások a modern minimalizmust és a természetes anyagok időtálló eleganciáját egyensúlyozzák: tölgy furnéros egyedi bútorok, látványbeton felületek, gondosan komponált fények és letisztult vonalak teszik teljessé az élményt.

Az ingatlan főbb adatai:

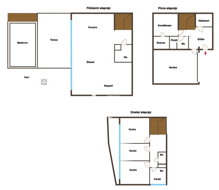
Telek: 805 m²
Lakóegység (kínált épület): nettó 180 m²
Saját kert: 200 m², teljesen elkerített
Épület: két teljesen külön álló lakóegységből álló villaépület

Panoráma, medence, luxus beltér, alacsony energiaigény
Belső kialakítás fény, tágas terek, kompromisszummentes minőség
teljes üvegfelületű nappalikonyhaétkező (padlótól mennyezetig üvegezett)
teljesen felszerelt, gépesített konyha (BOSCH)
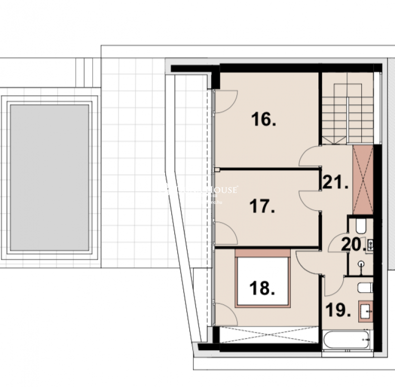
3 hálószoba
3 fürdőszoba
előszoba + tágas gardróbok

konditerem + szauna
2 állásos garázs 2 elektromos autótöltővel

Kültér privát wellness és designkörnyezet
panorámás terasz egyedi kerti konyhával
feszített víztükrű, fűthető infinity medence, ellenáramoltatóval és fedéssel
parkosított kert örökzöldekkel, cserjékkel, automata öntözőrendszerrel
kerti konyha Landmann grillel

Egyedi belsőépítészeti megoldások
méretre készült tölgy furnéros bútorok (előszoba, konyha, nappali, gardrób, szülői háló)

egyedi falburkolatok
látványbeton elemek kültéren és beltéren
design világítási rendszer

Kiemelkedő műszaki tartalom a kategória élvonalában
nagytáblás kompozitlemez homlokzat
Mitsubishi Zubadan hőszivattyús fűtés/hűtés
Mitsubishi Lossnay hővisszanyerős szellőztetés
központi porszívó rendszer
vízlágyító (konyhában lágyítatlan vízvezetékkel)

teljes épületautomatika:
helyiségenkénti hőmérséklet-szabályzás
szellőztetés
árnyékolás
világítás
öntözőrendszer
fa-alu nyílászárók, küszöb nélküli tokrendszer
Schlotterer alumínium zsaluzia
riasztó és videós kaputelefon

Vételár
490 millió Ft, a teljes felszereltséggel és beépített bútorzattal együtt.

Az ingatlan alaprajza


Kollégánk várja érdeklődését!

Szeder Krisztina
Tel: 36 70 3146-mutasd!
E-mail: [email protected]

Visszahívást kérek